Популярное

Музыка Кино и Анимация Автомобили Животные Спорт Путешествия Игры Юмор

Интересные видео

2025 Сериалы Трейлеры Новости Как сделать Видеоуроки Diy своими руками

Топ запросов

смотреть а4 schoolboy runaway турецкий сериал смотреть мультфильмы эдисон
dTub
Скачать

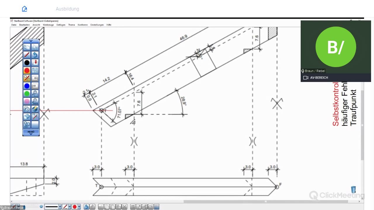
Anreißen von Hölzer mit dem Alphawinkel

Автор: Berufsfoerderungswerk Suedbaden

Загружено: 2021-02-23

Просмотров: 1782

Описание:

In diesem Online-Seminar zeigen wir Zimmerer Auszubildenden im 2. und 3. Ausbildungsjahr das Anreißen verschiedner Hölzer mit Hilfe des CAD-Plans und dem Alphawinkel.

Anreißen von Hölzer mit dem Alphawinkel

Поделиться в:

Доступные форматы для скачивания:

Скачать видео mp4

  • Информация по загрузке:

Скачать аудио mp3

Похожие видео

Schräger Giebelsparren//Gratsparrenwechsel//gleicher Neigung - Online Seminar vom 12.02.21 Teil II

Schräger Giebelsparren//Gratsparrenwechsel//gleicher Neigung - Online Seminar vom 12.02.21 Teil II

Anreißen eines Gratsparrens

Anreißen eines Gratsparrens

Gratsparren austragen. Ungleich geneigtes Dach

Gratsparren austragen. Ungleich geneigtes Dach

Anreißen mit einem Alphawinkel - Normalsparren

Anreißen mit einem Alphawinkel - Normalsparren

Anreißen Kehlsparren gleiche Dachneigung | Bildungszentrum Holzbau Biberach

Anreißen Kehlsparren gleiche Dachneigung | Bildungszentrum Holzbau Biberach

Modell Ausarbeiten

Modell Ausarbeiten

Teildemontage eines 80 Meter Kranauslegers

Teildemontage eines 80 Meter Kranauslegers

Gratsparren anreißen

Gratsparren anreißen

Путин достал

Путин достал "Орешник": ядерный сигнал для Белого дома - Риттер и Макговерн

Как производят доступные внедорожники в Китае – полный производственный процесс

Как производят доступные внедорожники в Китае – полный производственный процесс

How to: Sparren konstruieren und anreißen wie ein Zimmermann 👍🔨📐

How to: Sparren konstruieren und anreißen wie ein Zimmermann 👍🔨📐

Poznajmy artystę Cieślę Kazimierza Talent i wiedza od pokoleń Górali Kto tak umie budować na wieki

Poznajmy artystę Cieślę Kazimierza Talent i wiedza od pokoleń Górali Kto tak umie budować na wieki

Anreißen Gratsparren gleiche Dachneigung | Bildungszentrum Holzbau Biberach

Anreißen Gratsparren gleiche Dachneigung | Bildungszentrum Holzbau Biberach

Unbelievable Workers | Working with Talented Engineers . EP6 #construction #adamrose #workers #smart

Unbelievable Workers | Working with Talented Engineers . EP6 #construction #adamrose #workers #smart

Die lächerlichsten Fehler von Arbeitern, gefilmt mit der Kamera

Die lächerlichsten Fehler von Arbeitern, gefilmt mit der Kamera

Rechnerischer Abbund für Zimmerer

Rechnerischer Abbund für Zimmerer

Grundlagen Mauerwerk - Online Seminar vom 12.02.21

Grundlagen Mauerwerk - Online Seminar vom 12.02.21

Это простое изобретение может изменить всё! Отличный инструмент для самостоятельного изготовления в

Это простое изобретение может изменить всё! Отличный инструмент для самостоятельного изготовления в

Уоррен Баффет: Если вы хотите разбогатеть, перестаньте покупать эти 5 вещей.

Уоррен Баффет: Если вы хотите разбогатеть, перестаньте покупать эти 5 вещей.

Anreißen Gratsparren - ein Urlot

Anreißen Gratsparren - ein Urlot

© 2025 dtub. Все права защищены.



  • Контакты
  • О нас
  • Политика конфиденциальности



Контакты для правообладателей: infodtube@gmail.com